医院家具|医疗推车/柜|办公家具|设计师家具|Procedure 无钥匙锁医疗推车
CG-A2500-2
产品参数
-
型号:
CG-A2500-2
-
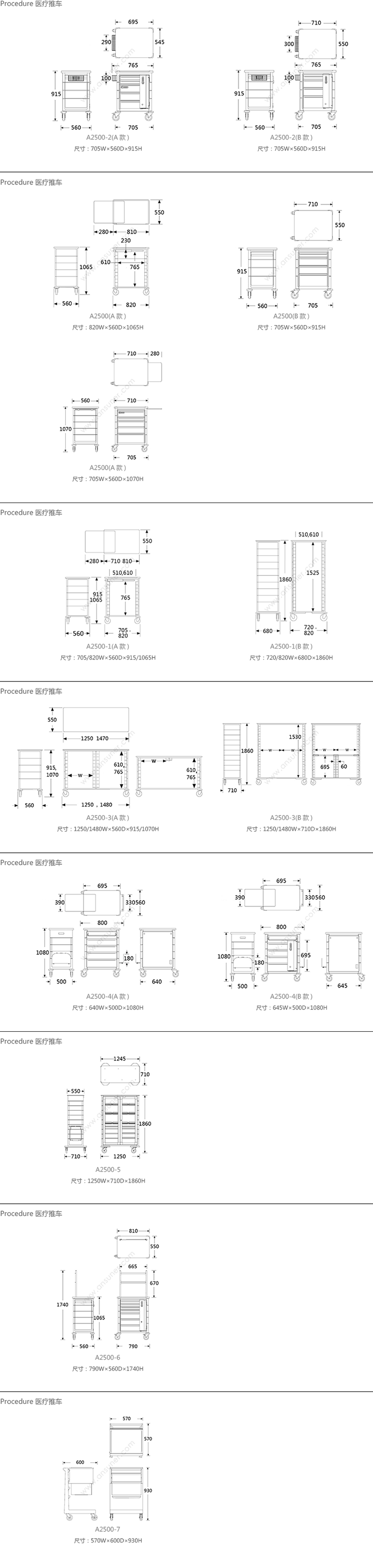
尺寸:
见详情
-
材质:
星空在线
医疗环境要求不断变化。这些坚固耐用的手推车是为了满足你今天的需求,并随着你的需求而改变。模块化购物车系统意味着通用尺寸和易于互换的抽屉和附件。
我们的灵活和适应性的解决方案扩展了您的存储和传输能力,节省了时间和金钱,并提高了效率和生产力。

Procedure 医疗推车 细节/功能展示




Procedure 医疗推车 实景/空间展示










Procedure 医疗推车 系列尺寸/示意图





